Flat
Guide Price £1,950.00/Monthly
Amenities And Features
- Bright and Airy 2 bed Flat
- Fully Fitted Large Kitchen
- Separate Dining Room
- Prime Location
- Parking Allocated
- Fully Renovated
- Double Glazed Windows
- Two bathrooms
- One En-suite
- Communal Garden
- N/A
- Gas Central Heating
Property Details
-
ID
PROP0372
-
Price
£1,950.00
-
Bathroom(s)
1
-
Bedroom(s)
2
-
Reception(s)
1
-
Type
Flat
-
Tenure
-
-
Status
For let
-
Size
774 sqft
-
Parking
Permit Parking
Description
Available June 1st .
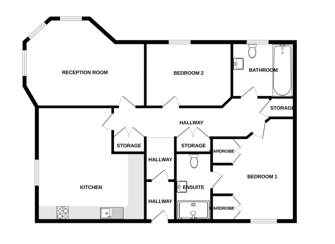
Property Hub are delighted to market this full presented two-bedroom flat situated on the ground ffloor. The flat comprises of two good sized double bedrooms, spacious living room, fully fitted kitchen, family bathroom and a exclusive en-suite.
Ideally situated in Watford, the property boasts excellent transport links, making it a perfect choice for families or investors. Property also benefits from the nearby shops and local amenities along with quick access to Watford Met line and Watford Junction Overground and National Rail.
The flat is sold fully furnished, including built-in cupboards, kitchen appliances (washing machine, fridge, cooker, etc.), and extra storage solutions in the bedrooms .
Address: Grandfield Avenue, Watford, WD17 4UE
Rent : £1950@m
EPC : C // Council Tax : D
Read More
Property Hub are delighted to market this full presented two-bedroom flat situated on the ground ffloor. The flat comprises of two good sized double bedrooms, spacious living room, fully fitted kitchen, family bathroom and a exclusive en-suite.
Ideally situated in Watford, the property boasts excellent transport links, making it a perfect choice for families or investors. Property also benefits from the nearby shops and local amenities along with quick access to Watford Met line and Watford Junction Overground and National Rail.
The flat is sold fully furnished, including built-in cupboards, kitchen appliances (washing machine, fridge, cooker, etc.), and extra storage solutions in the bedrooms .
Address: Grandfield Avenue, Watford, WD17 4UE
Rent : £1950@m
EPC : C // Council Tax : D
Disclaimer:
No administrative fees No check in inventory fees The information displayed about this property comprises a property advertisement. Property Hub, Wembley will not make any warranty as to the accuracy or completeness of the advertisement or any linked or associated information, and Property Hub has no control over the content. This property advertisement does not constitute property particulars, the property may offer to tenants in the same condition as they have seen on time of viewing. The information is provided and maintained by Property Hub, Wembley. "We (Property Hub Ltd) strongly suggest to all prospective clients and viewers of the properties, that they must make payment to Property Hub Limited only to secure the property i.e. Holding Amount (1 Week's worth of rent), Deposits (5/6 Weeks Tenancy Deposit) or Advance 1st Month Rent or any payment towards the property. You (Client) must not pay directly the funds (Money) to the landlord / any other agent acting on behalf of the landlord/person showing you the property to secure the tenancy or to sign up the tenancy. Should you find such a request for payment or any suspicious activity you must report it to us in writing or simply contact our office via phone or email. The bank details provided to you will be coming only via email and those emails must be coming from the company (Property Hub Ltd)'s domain, if you find any discrepancy or doubt you must call our dedicated landline number and check the authenticity of the account number before making payments.
No administrative fees No check in inventory fees The information displayed about this property comprises a property advertisement. Property Hub, Wembley will not make any warranty as to the accuracy or completeness of the advertisement or any linked or associated information, and Property Hub has no control over the content. This property advertisement does not constitute property particulars, the property may offer to tenants in the same condition as they have seen on time of viewing. The information is provided and maintained by Property Hub, Wembley. "We (Property Hub Ltd) strongly suggest to all prospective clients and viewers of the properties, that they must make payment to Property Hub Limited only to secure the property i.e. Holding Amount (1 Week's worth of rent), Deposits (5/6 Weeks Tenancy Deposit) or Advance 1st Month Rent or any payment towards the property. You (Client) must not pay directly the funds (Money) to the landlord / any other agent acting on behalf of the landlord/person showing you the property to secure the tenancy or to sign up the tenancy. Should you find such a request for payment or any suspicious activity you must report it to us in writing or simply contact our office via phone or email. The bank details provided to you will be coming only via email and those emails must be coming from the company (Property Hub Ltd)'s domain, if you find any discrepancy or doubt you must call our dedicated landline number and check the authenticity of the account number before making payments.
Get Direction
-
City
Watford
-
Postal code
WD17 4UE
-
Area
Watford Borough Council
Floor Plans
-
View Floor Plans
-
Second Floor
- 2 Bedroom
- 2 Bathroom
What’s Nearby?
Not available at the moment.
Similar Properties
Find a Local Real Estate Agent Today
If you’re looking to buy or sell a home. We’ll help you make the most money possible.