Takeaway
£25,020.00/Per Annum
Commercial Let

Buckingham Parade, The Broadway, STANMORE, HA7 4EB, UNITED KINGDOM

Property No:
PROP0365
Break Clause:
-
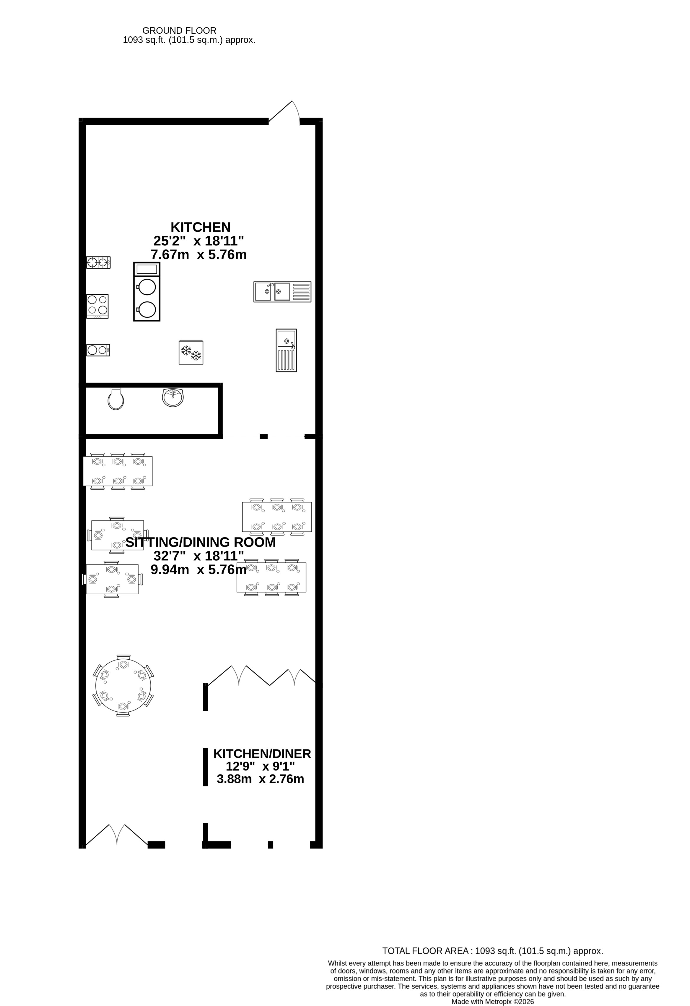
Size :
1081 sqft
Lease Type:
5 yrs but automatically extendable to 10 yrs
Minimum Lease:
5 Years
Current Status:
-
Loading:
-
Ask a questions
Amenities And Features
  • A3 License
  • Fully Fitted Kitchen
  • 32 Covers
  • Prime Location
  • Profit-Making Business
  • 1081 sq ft
  • Flexible Lease
  • Transport Links
Property Details
  • Property No

    PROP0365

  • Asking Rent

    £25,020.00 Per Annum

  • Lease Type

    5 yrs but automatically extendable to 10 yrs

  • Size

    1081 sqft

  • Minimum Lease

    5 Years

  • Break Clause

    -

  • Availability

  • Business Rates

    Asking for premium

  • Current Status

    -

  • Deposit

    -

Description
Property located in Stanmore HA7

Location
Busy High Street of Stanmore

description
Premium : Guide price : £149,000 but negotiable

Busy Coffee and brunch Cafe

32 covers with Huge Kitchen

Potential to add more covers

Hige potential if you want to do Pure Veg restaurant

Note : To take over this lease, the incoming tenant must be able to provide a home owner guarantor documents to witness the lease .

A ready to go Kitchen fully fitted with all the appliances

Includes Fittings and furniture .

A3 License.

Huge Footfall

Running, making profit .

Premium : £149,000 inc all Kitchen Appliances and furniture

1081 sq ft.Ground floor and toilet plus small storage upper

Excellent Location

Heads of terms :
Lease 5 yrs but automatically extendable to 10 yrs as we have a revisionary confirmation
Rent £2,083 @m plus vat
Service charge : £160@m

Review 5 yrs

London Borough of Harrow

Epc-b

High Standard Premises

Spacious Eye Catching Frontage

Modern interior

Easily Commutable via Bus, Train

Plenty of parking spaces

Parade of Shops and Residential above it

Please contact our dedicated commercial specialist on Disclaimer :: The information displayed about this property comprises a property advertisement. This property advertisement does not constitute property particulars, the property may offer tenants in the same condition as they have seen on time of viewing. The information is provided and maintained by Property Hub, Wembley. We aim to give as accurate as possible information while displaying the advert of the property, however should you come to know about any information which is misled or incomplete, or wrong do not hesitate to contact our office. We recommend your solicitor should advice or check the property’s head of terms and conditions for you, prior to approving the lease or bounding you with the contract. * While renting a commercial property through our agency you may be liable to pay agency fees, please check with our office in advance to avoid disappointment.
Read More
Get Direction
  • City
    Stanmore
  • Postal code
    HA7 4EB
  • Area
Floor Plans
  • img-floor
  • img-floor
File Attachments - EPC

Similar Properties

Property Image
  • For Let
  • Commercial
PROP0004

Burnt Oak Broadway, Edgware, Middlesex, HA8 5ED

  • - Sqft
  • Commercial
  • Available Now
£50,000.00
Property Image
  • For Let
  • Commercial
PROP0019

Uxbridge Road Pinner HA5 4HS

  • - Sqft
  • Commercial
  • Let Agreed
£2,583.00
Property Image
  • For Let
  • Commercial
PROP0021

Craven Road, London, W2 3BX

  • - Sqft
  • Commercial
  • Available Now
£45,000.00

Find a Local Real Estate Agent Today

If you’re looking to buy or sell a home. We’ll help you make the most money possible.

Find your location agent