Residential Sale

Maybank Avenue, Wembley, HA0 2TH

  • 2Bedroom(s)
  • 1Bathroom(s)
  • 1Receptions(s)
ID:
PROP0109
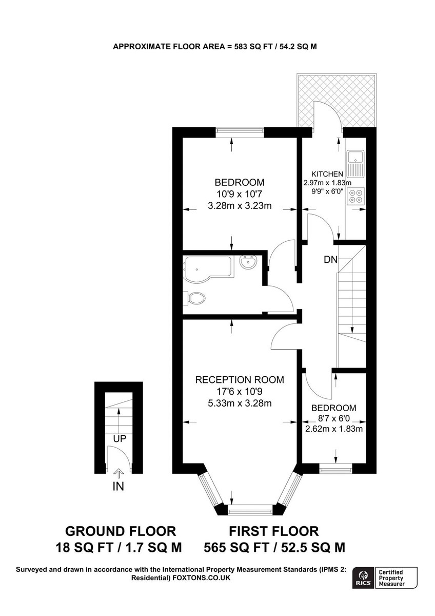
Size:
565 sq ft
52.49 sq m
Parking
On Road Parking
Era:
Not Specified
Tenure
Leasehold
Ask a question
Amenities And Features
  • First Floor Flat
  • 2 bedroom Maisonette
  • Bathroom
  • Very good condition
  • Laminated flooring
  • Double Glazed
  • Fitted kitchen
  • Ideal for first time
  • With a small balcony
  • Long lease / Leasehold
  • N/A
Property Details
  • ID

    PROP0109

  • Price

    £330,000.00

  • Bathroom(s)

    1

  • Bedroom(s)

    2

  • Reception(s)

    1

  • Type

    Maisonette

  • Tenure

    Leasehold

  • Status

    For sale

  • Size

    565 sqft

  • Parking

    On Road Parking

Description
Property hub is delighted to present this 2-bedroom first floor maisonette. The property is in very good condition, ideal for a first-time buyer or an investor. It consists of wooden laminated flooring throughout the first floor. It further consists of two bedrooms, living room, fitted kitchen and a bathroom. It benefits of double-glazed windows, Juliet balcony and street parking.
Option to buy out the Freehold for the property.

For viewings please only contact our sales team.

Address : Maybank Avenue, Wembley, HA0 2TH
Guide Price : £ 330,000 / Leasehold // Long years of lease
Potential possibility to purchase the Freehold
Ground Rent : £400 per year
Service charge : £ 350 / £400 per year Aprox
EPC : C
Council tax Band : D
Disclaimer:
Property Hub does make sure the details are given in the property particular and the advertisement are as accurate as possible, however, we urge the buyer or associated parties come to know about any details that are not correct, wrong, or inaccurate including photos and description please let our agency know as soon as possible. Property Hub will not warranty or guarantee the appliance, chattels, or fixture and fitting that may come with property sales. The properties are generally sold as seen, however, we strongly suggest the buyer/seller observe and check the property fixture & fitting Forms (TA10), along with the property information Form (TA06) as well as the Leasehold Information Form (TA07). This property advertisement does not constitute property particulars, your conveyancer should check the papers of the sale, title, and other property-related matters thoroughly and advise you before you exchange the property and complete the sale. We strongly suggest you should conduct the full survey of the property to secure your best interest and the surveyor must be a member of the Royal Institute of Charter Surveyors (RICS).
Read More
Lease Hold Property Options
Remaining Lease (Years) 1
Yearly Ground rent Cost (£) 400
Annual Service Charge (£) 400
Status Available Now
Utilities
  • Electricity Supply

    Mains

  • Water Supply

    Mains

  • Wastewater

    Mains

  • Internet

    Cable, Mobile

Get Direction
  • City
    Wembley
  • Postal code
    HA0 2TH
  • Area
    Barnet
Floor Plans
  • img-floor
File Attachments - EPC
What’s Nearby?

Not available at the moment.

Similar Properties

Property Image
  • Featured
  • For Sale
  • Residential
Apartment

Roe Green, LONDON, NW9 0PL, UNITED KINGDOM

  • 3Bedroom(s)
  • 3Bathroom(s)
  • 4,043Sqft
£330,000.00
Property Image
  • Featured
  • For Sale
  • Residential
Flat

Quadrant Court, Empire Way, HA9 0EY 0EY

  • 3Bedroom(s)
  • 3Bathroom(s)
  • 4,043Sqft
£450,000.00
Property Image
  • Featured
  • For Sale
  • Residential
Mid-Terrace House

Maryside, Slough, SL3 7ET

  • 3Bedroom(s)
  • 3Bathroom(s)
  • 4,043Sqft
£440,000.00

Find a Local Real Estate Agent Today

If you’re looking to buy or sell a home. We’ll help you make the most money possible.

Find your location agent