Description
LOCATION
High Street Harlesden NW10.
DESCRIPTION
Well established Franchised Sandwich Fast Food Business, trading very well.
Premium : £55,000
Excellent Location
Busy Street with huge footfall.
High Standard Premises
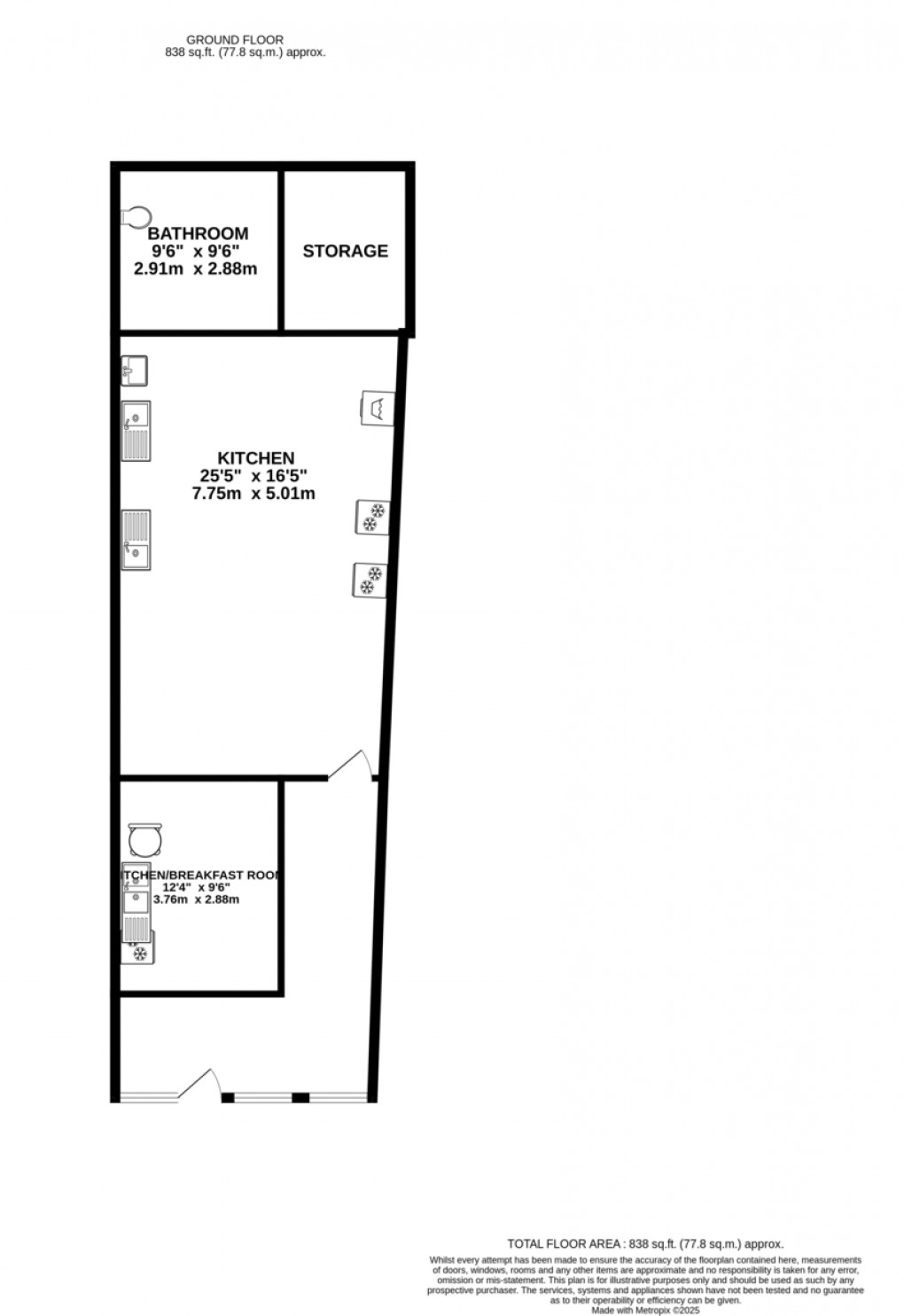
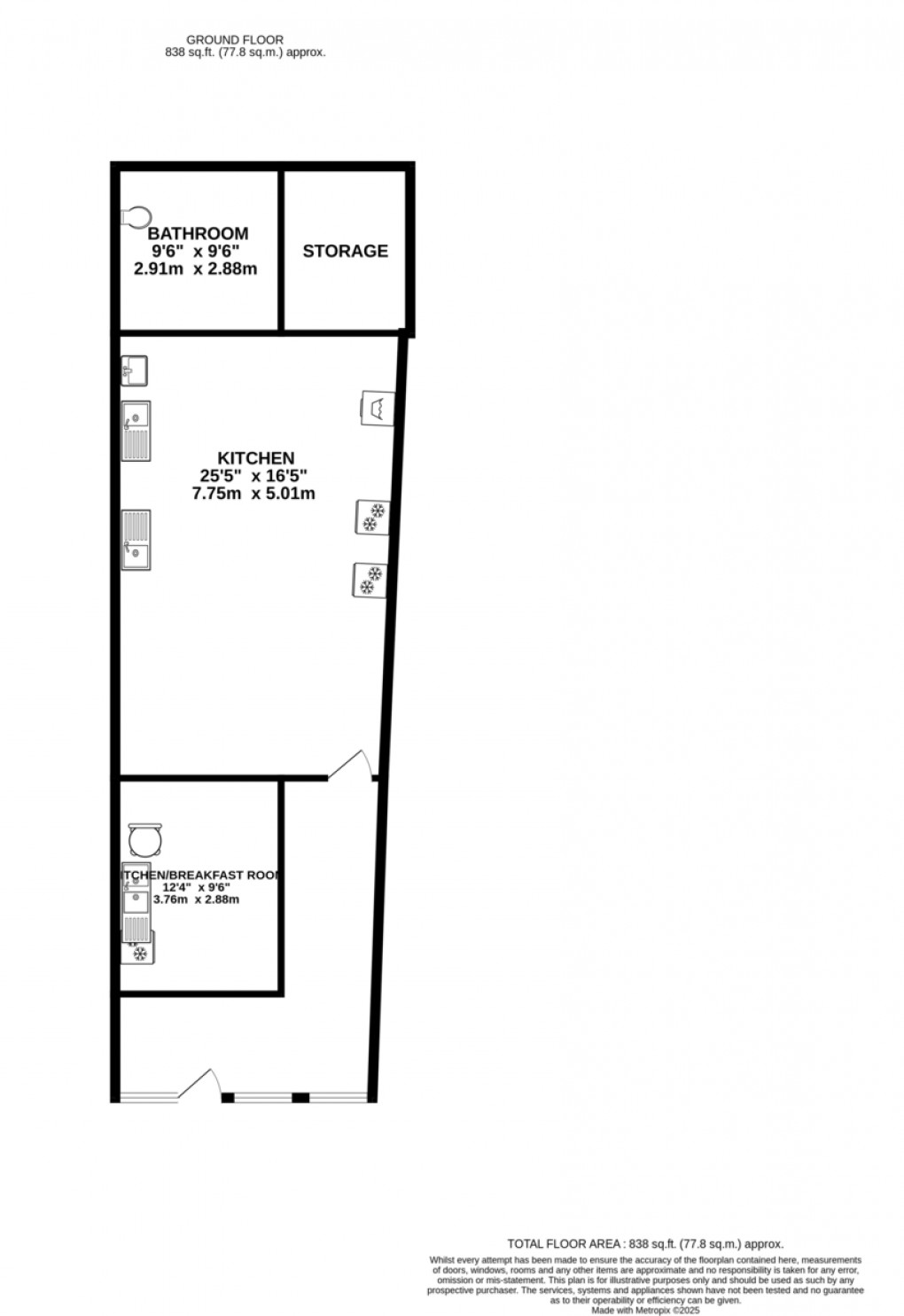
Good Size 840 sq ft
Numerous shops and retails around
Underground Station within walking distance
Property Hub is delighted to offer a Prime location retail food business Premises, the property is located on Busy Street of Craven Road, heart of Paddington and benefited with different Businesses around with Residential Premises above the parade of shops and busy bus garage and tube stations.
Fully Fitted Kitchen
Premises: High Street Harlesden NW10.
Rent: £39,000@YEAR
Advance Rent: 3 Months
Lease : Owned and operated by the head office of the Franchise brand.
Deposit: 6 Months
Rent Free Period: NA
Break Clause: 5 years
Legal Cost: Incoming Tenants will bear their own costs
Property will be given as seen
Viewings available strictly via agent, Property Hub, 02035002596 or 07894545073
.
Disclaimer:
The information displayed about this property comprises a property advertisement. Property Hub, Wembley aims to give as accurate as possible information, however, if you come to know or are aware of any information which is inaccurate, please inform our office and we will make sure it gets corrected without any delay. Property Hub has no control over the content as some of the figures and numbers are provided by the landlord, however, we advise you to check the lease thoroughly prior to signing the lease or any legal documents. This property advertisement does not constitute property particulars, the property may offer tenants the same condition as they have seen at the time of viewing. The information is provided and maintained by Property Hub, Wembley. * While renting a commercial property through the agency you may be liable to pay agency fees.
Floorplan
EPC









