Back to Search Results
1 bed Shared Flat for Rent
Room to rent - Turton Road, First Floor, Wembley, HA0 2BS
£850 PCMShare:
Description
- First Floor Double Bedroom, Rear Aspect
- First Floor shared shower room
- Shared kitchen / diner
- Communal Entrance
- Newly Refurbished
- Laminated flooring
- Double Glazed
- Gas central heating
- Including All Bills & Council Tax
- Ready to Move-in
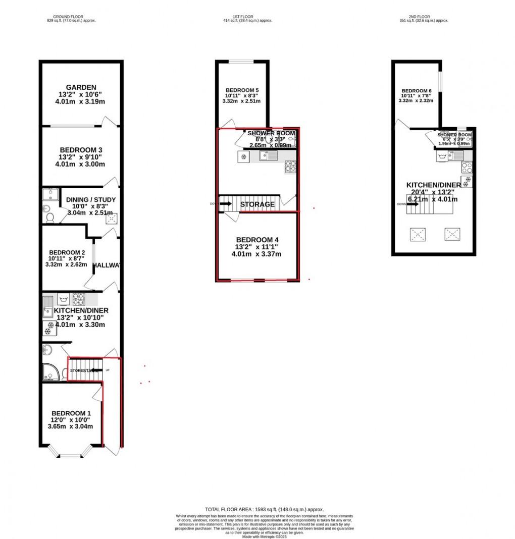
Please see the floor plan market with Red outline for the room in question.
For viewings please only contact dedicated lettings team.
Address : Turton Road, First Floor Double Bedroom, Wembley, HA0 2BS
Rent : £850 PCM excluding bills and Council Tax // £196 PCW
Deposit : £980 (5Weeks)
Length :12 months
EPC : E
Council tax Band : D
Disclaimer:
No administrative fees
No check in inventory fees
The information displayed about this property comprises a property advertisement. Property Hub, Wembley do make sure the details displayed in accurate and presented with completeness, however if you come to know about anything which is incorrect or inaccurate in the advertisement or any linked or associated information are not correct please let our office know without any delay. This property advertisement does not constitute property particulars, the property may offer to tenants in the same condition as they have seen on time of viewing. The information is provided and maintained by Property Hub, Wembley.
Floorplan
EPC








